Modern Zen

Modern apartment
Location:
Ukraine
Type of housing: apartment
Date:
2022
Square meter:
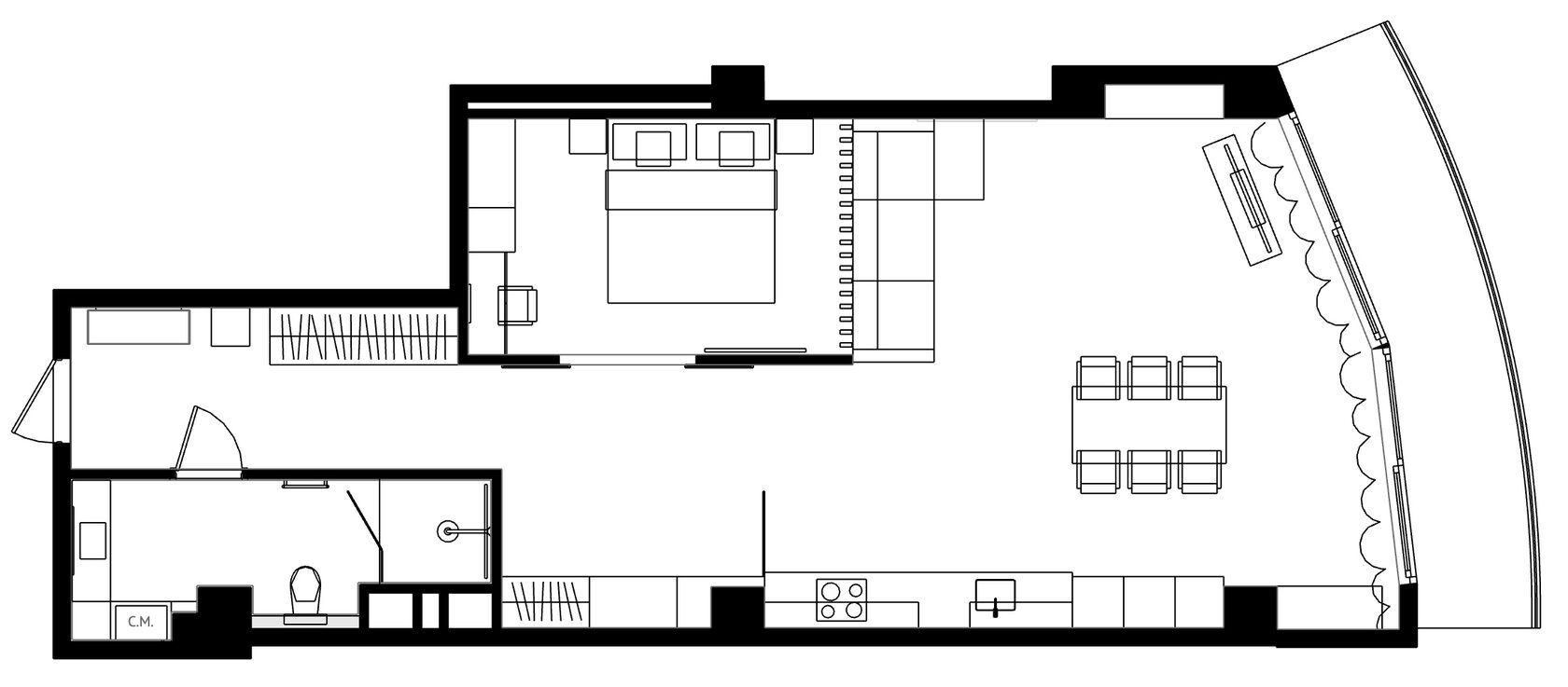
78.4m²

A modern, and minimalist designed with the use of natural materials. The furniture is uniformly gray, exuding a sense of understated elegance. The stone accents and glass elements further enhance the contemporary aesthetic, seamlessly blending with the overall design. In the bedroom, the walls are adorned with tropical-themed wallpaper featuring palm leaf patterns against a dark backdrop, creating a captivating focal point.

Concept

LET'S CREATE YOUR PROJECT!